613.273.9595 info@gurreathomes.com

Price: $599,000

MLS® #: X12833734

Waterfront: No

Sale Type: Residential

Public Remarks:

Rideau Lakes, Westport Bungalow on 1.49 Acres with 3+1 Bed & 3 Bath

Charming country home with walk-out basement, propane fireplaces, perennial gardens & minutes to the village of Westport.

Rideau Lakes, Westport Bungalow Location & Setting
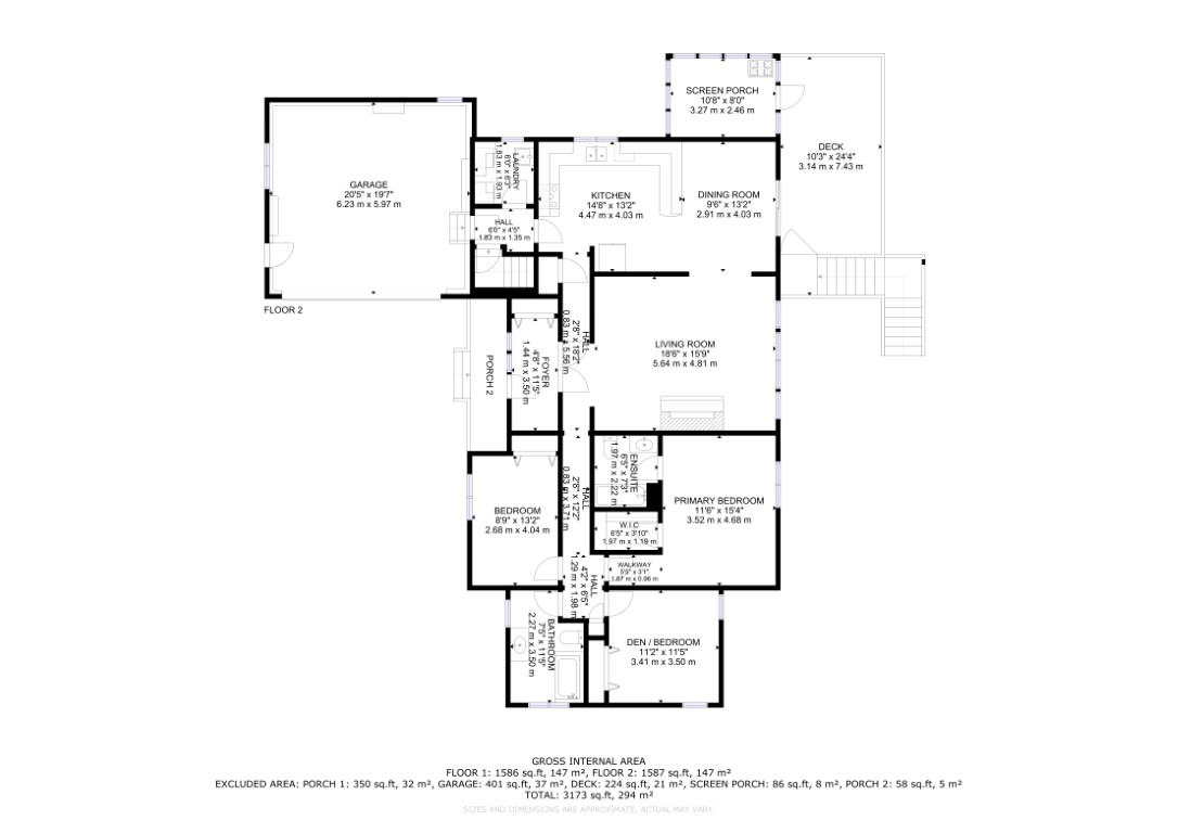
Nestled on a picturesque 1.49-acre wooded lot just south of Westport, this charming 1586 sq. ft. bungalow offers peaceful country living with incredible potential.

Gardens, Wildlife & Natural Surroundings
Surrounded by mature trees, perennial gardens, and a thriving vegetable patch, the property provides privacy, natural beauty, and abundant wildlife right in your own backyard.

Main Floor Bedrooms & Bathrooms
The main level features three spacious bedrooms, two full bathrooms—including a walk-in bathtub ideal for those with mobility considerations—a convenient laundry room, and a bright, welcoming living room anchored by a stunning stone propane fireplace.

Kitchen, Dining & Deck Access
The kitchen flows seamlessly into the dining area with direct access to a rear deck with a retractable awning, where you can relax and overlook the gardens and wooded landscape beyond.

Walk-Out Basement Living Space
The fully developed walk-out basement expands the living space with a fourth bedroom, a 3-piece bathroom, a generous family room with a second propane fireplace, plus a workshop, a cold room, a utility area, and plenty of storage throughout.

Additional Property Features
Additional highlights include a drilled well, a full septic system, an attached two-car garage, and a garden shed. The front gardens are truly magnificent, showcasing mature shrubs and vibrant perennials that enhance the home’s curb appeal.

Location & Nearby Amenities
Located just minutes from the village of Westport, you’ll enjoy easy access to shops, restaurants, pubs, and local entertainment. The city of Kingston is only 45 minutes south for expanded amenities and big-box shopping.

Renovation & Update Potential
While the home reflects its era, it presents a fantastic opportunity to update and transform it into a stunning modern retreat in a serene country setting.

Directions:

Road passed Concession Road 8. Watch for signs.

Listing Information

🏠 Address
  • Address: 9889 Perth Road, Rideau Lakes, Ontario K0G 1X0
  • Municipality: Rideau Lakes 816—Rideau Lakes (North Crosby) Twp Leeds and Grenville
  • Legal: PT LT 9 CON 7 North Crosby PT 1 28R779; Rideau Lakes
➡️ General Information
  • Taxes: $3,577.36
  • Tax Year: 2025
  • Zoning: RU
  • Year Built: 1984
  • Lot Size: 200 x 330 Feet Irregular
  • Sq Ft: 1586 Sq Ft
  • Acres: 1.49 Acres
🖼️ Interior
  • Total # of Bedrooms: 4 (3 + 1)
  • Bathrooms: 3
  • Flooring: Vinyl, Parquet, Broadloom, Tile, Concrete
  • Basement Type: Finished / Full / Walk-Out
  • Laundry Level: Main
  • Interior Features: Primary Bedroom on Main Floor, Storage, Sump Pump
  • Security Features: Smoke Detector

Room Info:

Main Floor:

  • Foyer 11 ft ,5 in x 4 ft ,7 in
  • Laundry Room 6 ft ,2 in x 6 ft ,2 in
  • Kitchen 14 ft ,9 in x 12 ft ,9 in
  • Dining Room 12 ft ,9 in x 9 ft ,6 in
  • Living Room 18 ft ,4 in x 15 ft ,8 in
  • Primary Bedroom 15 ft ,1 in x 11 ft ,5 in
  • Bathroom 7 ft ,6 in x 6 ft ,2 in
  • Bedroom 2 11 ft ,5 in x 10 ft ,9 in
  • Bedroom 3 12 ft ,9 in x 8 ft ,6 in
  • Bathroom 11 ft ,5 in x 7 ft ,2 in

Basement:

  • Utility Room 14 ft ,9 in x 10 ft ,5 in
  • Family Room 26 ft ,2 in x 14 ft ,9 in
  • Cold Room 15 ft ,8 in x 2 ft ,7 in
  • Office 11 ft ,9 in x 8 ft ,10 in
  • Bedroom 4 16 ft ,4 in x 16 ft ,4 in
  • Bathroom 9 ft ,6 in x 8 ft ,2 in
  • Workshop 10 ft ,9 in x 10 ft ,5 in
🧱 Exterior
  • Exterior: Cedar
  • Roof: Asphalt Shingle
  • Foundation: Concrete Block
  • Exterior Features: Awnings, Deck, Landscaped, Privacy, Porch Enclosed
  • Structures: Garden Shed, Kennel
  • Property Features: Beach Access, Lake Access, Park, Place of Worship, School Bus Route
ℹ️ More Information
  • of Parking Spaces: 6 Total (2 Garage, 4 Drive)
  • Type: Bungalow
  • Heating Type: Propane, Forced Air, Heat Pump
  • Fireplace: 2 (Propane)
  • Cooling: Central Air Conditioning
  • Utility Sewer: Septic
  • Water: Drilled Well
  • Utility Type: Cell Services, Electricity Connected, Garbage Pickup, Internet High Speed, Phone Connected, Recycling Pickup
  • Garage: Attached, 2
  • Driveway: Circular Drive, Private, Double
  • Topography: Level, Rolling, Wooded/Treed
  • Access to Property: Year-Round Municipal Road
  • Farm/Agricultural: Yes
➕ Inclusions

Fridge, Stove, Dishwasher, Washer, Dryer, Shed, Dog Kennel

Tammy Gurr, Broker

Tammy & Heath Gurr

Broker / Sales Representative

Phone

613.273.9595

Email
Listing Office: Royal LePage ProAlliance Realty, Brokerage, K177, Tammy and Heath Gurr

The information contained on this listing form is from sources believed to be reliable. However, it may be incorrect. This information should not be relied upon by a buyer without personal verification. The brokers and agents and members of the Kingston and Area Real Estate Association assume no responsibility for its accuracy.